













Sentrumsnære leiligheter for langtidsutleie
Meld interesseModerne leiligheter til langtidsleie
Nye flotte og moderne leiligheter til langtidsleie i et nytt boligprosjekt i Speidarvegen i Aurelia.
Innhold
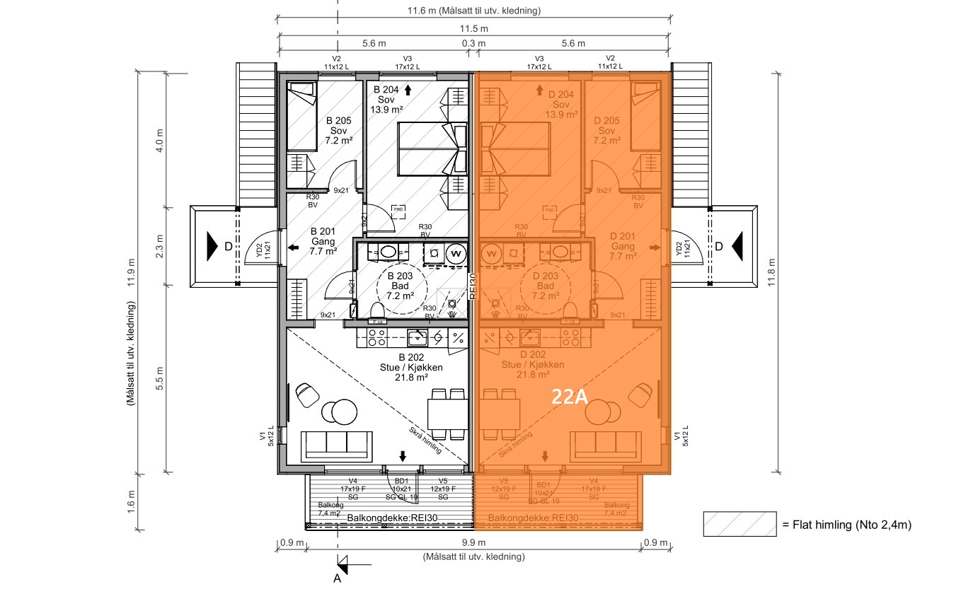
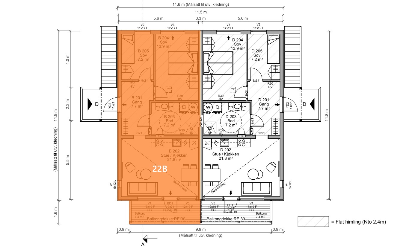
Eiendommen består av 8 like leiligheter fordelt på to firemannsboliger.
Hver leilighet inneholder entré/gang, to soverom, dusj/wc, vaskerom samt stue med åpen kjøkkenløsning og utgang til egen privat balkong/terrasse. Egen utvendig sportsbod i bodbygg.
Standard
Leilighetene er bygget i henhold til gjeldende byggestandard (TEK17).Overflatene er gjennomgående lyse og moderne, og planløsningene er praktiske og funksjonelle. Balansert ventilasjon med varmegjenvinning i hver leilighet. Varmekabler i våtrom. Panelovn i stue (1000W) og på hvert soverom (500W). Sensorstyrt utebelysning.
Disse leilighetene er et svært godt valg for deg som ønsker en moderne bolig, et stabilt leieforhold og et hjem med god kvalitet. Med kort vei til sentrum, kollektivtilbud og servicetilbud ligger alt til rette for en komfortabel og praktisk hverdag.